Biệt thự tân cổ điển luôn được ưa chuộng nhờ vào vẻ đẹp trang nhã, tinh tế và đẳng cấp. Chính vì thế, nhiều gia đình đã chọn phong cách thiết kế này cho biệt thự của mình. Các mẫu biệt thự 2 tầng cũng không phải là ngoại lệ. Kiến trúc Nam Cường xin giới thiệu đến bạn những mẫu thiết kế biệt thự 2 tầng tân cổ điển đẹp mắt, hy vọng sẽ mang đến cho bạn thêm nhiều ý tưởng cho không gian sống của mình. Hãy cùng tham khảo bài viết dưới đây nhé

Đặc điểm của biệt thự 2 tầng tân cổ điển
Mỗi kiểu thiết kế đều mang trong mình những đặc điểm riêng, phong cách kiến trúc tân cổ điển cũng vậy. Nắm rõ những đặc điểm này sẽ giúp gia chủ tạo ra không gian biệt thự mang đúng phong cách và phù hợp với nhu cầu gia đình.

Sang trọng, tính thẩm mỹ cao
Kiến trúc tân cổ điển tạo ra không gian sống đầy sang trọng và thẩm mỹ. Những chi tiết thiết kế được chăm chút tỉ mỉ và hoàn thiện với quy trình quản lý chất lượng nghiêm ngặt.
Ngoài ra, các chủ sở hữu biệt thự 2 tầng thường sẵn sàng đầu tư số tiền lớn cho những biệt thự tân cổ điển, sử dụng vật liệu cao cấp trong quá trình xây dựng. Chính vì vậy, biệt thự tân cổ điển không chỉ thu hút về mặt thẩm mỹ mà còn thể hiện đẳng cấp về chất lượng, mang lại niềm tự hào cho gia chủ.

Các đường nét trang trí tinh tế và tỉ mỉ
Các hoa văn trang trí trong biệt thự tân cổ điển được chăm chút rất kỹ lưỡng và công phu. Những chi tiết điêu khắc mang tính nghệ thuật cao, thể hiện nét văn hóa đặc trưng hoặc những thông điệp mà chủ nhà và kiến trúc sư muốn gửi gắm. Đây cũng là một yếu tố thu hút đặc biệt của phong cách kiến trúc tân cổ điển, được nhiều gia chủ ưa chuộng.

Thời gian thiết kế và thi công dài
Biệt thự tân cổ điển thường được trang trí với nhiều chi tiết cầu kỳ. Quá trình thi công của nó đòi hỏi nhiều bước phức tạp hơn so với một số phong cách kiến trúc khác. Vì vậy, thời gian để thiết kế và xây dựng cũng sẽ kéo dài hơn. Do đó, gia chủ nên cân nhắc thời gian hoàn thiện để phù hợp với sinh hoạt hàng ngày của gia đình.

Mức đầu tư tương đối lớn
Quy mô của các biệt thự theo phong cách tân cổ điển và cổ điển thường rất lớn và được xây dựng từ những vật liệu cao cấp. Do đó, các công trình này thường đòi hỏi một mức đầu tư khá lớn. Bên cạnh đó, biệt thự tân cổ điển cũng cần được trang bị những thiết bị gia dụng cao cấp cùng với các tiện ích phục vụ cho giải trí, vui chơi và làm việc.

Vì vậy, dựa trên nhu cầu sử dụng thực tế của gia đình, gia chủ cần xem xét tổng thể mức đầu tư cần thiết cho việc hoàn thiện xây dựng biệt thự. Hãy tính toán chi phí cho các thiết bị trong không gian sống của biệt thự
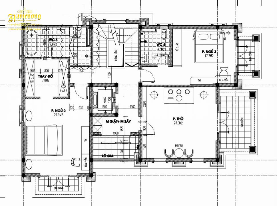
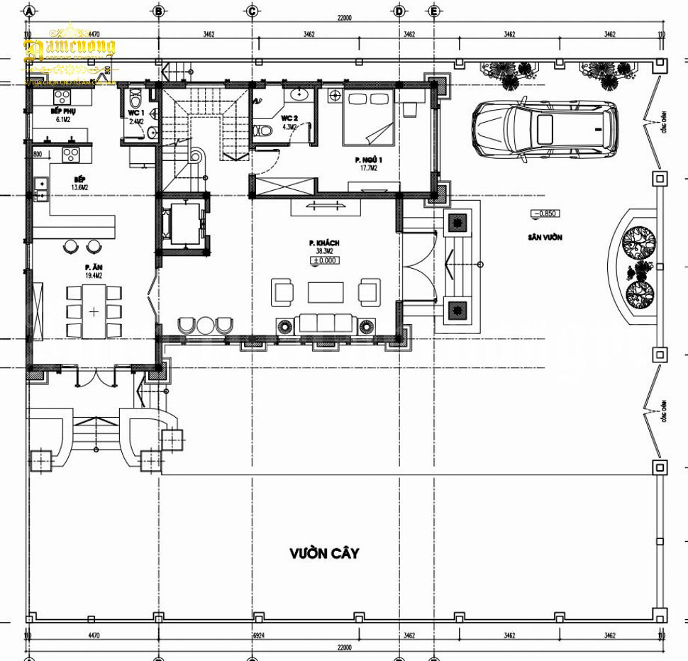
Mẫu thiết kế biệt thự 2 tầng tân cổ điển HOT nhất năm 2025
Mẫu thiết kế biệt thự tân cổ điển 2 tầng sân vườn
Biệt thự có ba mặt tiếp xúc với sân vườn, nên việc quy hoạch sân vườn là yếu tố quan trọng trong kiến trúc biệt thự. Bạn có thể chọn thiết kế sân vườn tùy vào diện tích và nhu cầu, phù hợp với phong cách tân cổ điển.

Mẫu biệt thự 2 tầng tân cổ điển được xây dựng trên khu đất rộng rãi, với khu vườn và bãi đỗ xe thoải mái. Đây là lựa chọn lý tưởng cho các vùng ngoại ô với không gian rộng và không khí trong lành.

Thiết kế biệt thự 2 tầng tân cổ điển kiểu Pháp
Biệt thự 2 tầng tân cổ điển Pháp mang vẻ đẹp sang trọng, lãng mạn như các lâu đài Châu Âu. Với hình khối đối xứng, mái Mansard, cửa sổ lớn và hoa văn tinh xảo, công trình này tạo không gian sống đẳng cấp, thể hiện gu thẩm mỹ cao. Đây là lựa chọn lý tưởng cho những ai yêu thích kiến trúc Pháp và mong muốn không gian sống khác biệt. Tuy nhiên, chi phí xây dựng cao và cần kỹ thuật thi công chính xác từ những nhà thầu có nhiều kinh nghiệm

Thiết kế biệt thự 2 tầng tân cổ điển Châu Âu
Biệt thự 2 tầng tân cổ điển Châu Âu mang vẻ đẹp sang trọng và tinh tế. Kiến trúc với cột trụ đối xứng, mái vòm duyên dáng và hoa văn tinh xảo tạo nên không gian sống đẳng cấp, thể hiện phong cách của gia chủ. Thiết kế này thu hút những người yêu thích kiến trúc Châu Âu, tuy nhiên, chi phí xây dựng cao và cần tay nghề thi công chuyên nghiệp.

Biệt thự 2 tầng tân cổ điển kiến trúc dinh thự
Biệt thự 2 tầng theo phong cách tân cổ điển mang đến vẻ đẹp sang trọng, quyền lực và đẳng cấp, thể hiện gu thẩm mỹ tinh tế cùng địa vị xã hội của chủ sở hữu. Với quy mô lớn, bố cục đối xứng tinh tế, cột trụ vững chắc, mái dốc cao, cùng với cửa sổ lớn và ban công rộng rãi, căn biệt thự này tạo ra không gian sống thoải mái, tiện nghi và gần gũi với thiên nhiên.

Đây là lựa chọn hoàn hảo cho những gia đình có điều kiện kinh tế tốt, yêu thích phong cách cổ điển và mong muốn thể hiện sự thành đạt của mình. Tuy nhiên, việc thiết kế loại biệt thự này thường đi kèm với chi phí xây dựng cao và yêu cầu diện tích đất khá lớn.
Biệt thự 2 tầng tân cổ điển mái vòm
Khi nhắc đến kiến trúc cổ điển của Châu Âu, không thể không nói đến những mái vòm cong mềm mại, tạo nên vẻ đẹp lãng mạn và sang trọng cho các công trình. Biệt thự tân cổ điển hai tầng có mái vòm chính là sự kết hợp hài hòa giữa kỹ thuật kiến trúc đẳng cấp và những chi tiết nghệ thuật độc đáo.
Điểm nổi bật của xu hướng này chính là tính thẩm mỹ cao, tạo dấu ấn nổi bật và phản ánh gu thẩm mỹ tinh tế của chủ nhà. Đây là sự lựa chọn hoàn hảo cho những ai yêu thích sự khác biệt, lãng mạn và mong muốn có một không gian sống đặc trưng, thể hiện phong cách riêng. Tuy nhiên, việc thi công mái vòm yêu cầu kỹ thuật cao, chi phí lớn và cần tập trung vào việc chống thấm hiệu quả..
Mẫu nhà biệt thự tân cổ điển 2 tầng kết hợp mái Mansard
Biệt thự 2 tầng theo phong cách tân cổ điển với mái Mansard toát lên vẻ đẹp sang trọng và tinh tế, đồng thời tối ưu hóa không gian sống. Hệ mái Mansard hình thang đặc trưng kết hợp với các cột trụ và hoa văn tinh xảo, tạo nên một kiến trúc bề thế và độc đáo.

Không chỉ gia tăng diện tích cho tầng áp mái, mái Mansard còn giúp điều hòa nhiệt độ hiệu quả. Thiết kế này rất phù hợp với những người yêu chuộng phong cách châu Âu, ao ước có một không gian sống đẳng cấp và tinh tế. Tuy nhiên, chi phí xây dựng cho kiểu thiết kế này thường cao và đòi hỏi kỹ thuật thi công khá phức tạp.



Mẫu nhà tân cổ điển 2 tầng kết hợp mái Thái
Hình ảnh những ngôi nhà thanh lịch dưới mái ngói đỏ tươi gợi lên sự quyến rũ riêng biệt của biệt thự 2 tầng mang phong cách tân cổ điển mái Thái. Đây là sự hòa quyện hoàn hảo của kiến trúc sang trọng châu Âu cùng vẻ đẹp quyến rũ của phương Đông.

Mái Thái dốc nhẹ, ngói xếp chồng khéo léo kết hợp cùng các cột trụ cao và ban công rộng, tạo nên một tổng thể vừa bền vững vừa tinh tế. Thiết kế này không chỉ tối ưu hóa không gian sống mà còn có khả năng thoát nước nhanh và chống nóng hiệu quả, rất thích hợp với khí hậu nóng ẩm của Việt Nam. Đây là một lựa chọn lý tưởng cho những ai yêu thích sự kết hợp giữa hai nền văn hóa, mong muốn có một không gian sống sang trọng nhưng vẫn gần gũi. Tuy nhiên, chi phí để xây dựng mái Thái thường sẽ cao hơn so với mái bằng.



Thiết kế biệt thự 2 tầng tân cổ điển mái Nhật
Biệt thự 2 tầng tân cổ điển mái Nhật kết hợp giữa phong cách kiến trúc Châu Âu và sự nhẹ nhàng của mái Nhật, tạo ra không gian sống tinh tế và gần gũi với thiên nhiên. Hệ mái ngói Nhật có độ dốc nhẹ, kết hợp với cột trụ và hoa văn tinh xảo, mang lại vẻ thanh lịch và hiện đại.

Thiết kế này tối ưu hóa không gian và thoát nước nhanh, chống nóng hiệu quả. Đây là lựa chọn lý tưởng cho những ai yêu thích sự giao thoa văn hóa Đông – Tây, muốn không gian sống sang trọng và thân thiện. Tuy nhiên, yêu cầu kỹ thuật thi công cần cao để đạt tính thẩm mỹ.




Thiết kế biệt thự tân cổ điển 2 tầng mái bằng
Biệt thự 2 tầng tân cổ điển mái bằng nhấn mạnh sự đơn giản và hiện đại. Thiết kế sử dụng khối vuông, cột trụ và hoa văn tinh xảo. Mái bằng tạo cảm giác rộng rãi và có thể làm khu vực thư giãn ngoài trời hoặc vườn cây. Đây là sự lựa chọn tuyệt vời cho những ai yêu thích sự tinh tế và tiện nghi. Tuy nhiên, cần chú ý về thoát nước và chống nóng cho mái.

Biệt thự mini 2 tầng kiến trúc tân cổ điển
Biệt thự mini 2 tầng tân cổ điển là lựa chọn lý tưởng cho không gian sống sang trọng trong diện tích nhỏ. Thiết kế có kiểu dáng gọn gàng, cột trụ thanh mảnh và trang trí nhẹ nhàng nhưng vẫn mang vẻ đẹp tân cổ điển. Chi phí xây dựng thấp và thi công nhanh phù hợp với cặp vợ chồng trẻ hay gia đình nhỏ. Gia chủ cần chú ý tối ưu không gian và bố trí nội thất để đảm bảo tiện nghi.

Thiết kế biệt thự 2 tầng tân cổ điển chữ L
Hình dạng chữ L độc đáo không chỉ mang đến vẻ ngoài nổi bật cho ngôi biệt thự 2 tầng theo phong cách tân cổ điển mà còn tối ưu hóa khả năng sử dụng không gian. Thiết kế này cho phép bố trí các khu vực một cách hợp lý, tận dụng những “góc chết” của khu đất và tăng cường ánh sáng tự nhiên cho không gian sống.

Những ngôi biệt thự có kiểu dáng chữ L thường sở hữu 2 mặt tiền, tạo nên những điểm nhấn kiến trúc ấn tượng và mở rộng tầm nhìn. Mô hình kiến trúc này rất thích hợp cho những mảnh đất có hình dạng méo, hẹp hoặc muốn tạo sự khác biệt về mặt thiết kế. Tuy nhiên, gia chủ cần cân nhắc kỹ càng về hướng nhà và vấn đề phong thủy trước khi quyết định chọn lựa kiểu dáng này.
Biệt thự 2 tầng tân cổ điển có bể bơi
Biệt thự 2 tầng tân cổ điển có bể bơi kết hợp giữa kiến trúc sang trọng và không gian giải trí thú vị. Bể bơi không chỉ làm nổi bật vẻ đẹp ngôi nhà mà còn tạo không gian thư giãn, rèn luyện cho cả gia đình. Thiết kế này thường đi kèm sân vườn rộng và tiểu cảnh nước, mang lại vẻ hài hòa với thiên nhiên, phù hợp cho những gia chủ có diện tích đất lớn và yêu thích cuộc sống hiện đại. Tuy nhiên, gia chủ cần cân nhắc chi phí xây dựng và bảo trì bể bơi cũng như đảm bảo an toàn trong quá trình sử dụng.

Thiết kế biệt thự 2 tầng tân cổ điển có gara
Biệt thự 2 tầng theo phong cách tân cổ điển có gara đang trở thành chọn lựa phổ biến của nhiều gia đình nhờ sự hòa quyện hoàn hảo giữa vẻ sang trọng và tinh tế của kiến trúc biệt thự cùng với tiện ích mà gara mang lại. Gara thường được thiết kế một cách hài hòa với tổng thể ngôi nhà, có thể tách rời hoặc nằm sát bên.

Chức năng của gara ô tô là bảo vệ xe trước thời tiết khắc nghiệt, đảm bảo an toàn và mở rộng không gian sinh hoạt cho gia đình. Tuy nhiên, khi đặt gara, cần cân nhắc vị trí để không làm ảnh hưởng đến thẩm mỹ và phong thủy của ngôi nhà.
Thiết kế biệt thự 2 tầng tân cổ điển có tầng hầm
Tầng hầm không chỉ là một lựa chọn hoàn hảo cho những ngôi nhà có diện tích nhỏ mà còn làm tăng thêm vẻ sang trọng cho những biệt thự tân cổ điển hai tầng. Không gian này có thể trở thành gara để xe, phòng tập gym, rạp chiếu phim trong nhà hay kho chứa đồ, giúp gia tăng diện tích sử dụng và mang lại nhiều tiện ích cho gia đình. Tuy nhiên, việc xây dựng tầng hầm cần chi phí đầu tư lớn và yêu cầu kỹ thuật thi công tương đối phức tạp.
Lưu ý khi thiết kế biệt thự 2 tầng tân cổ điển
Để có được một ngôi biệt thự tân cổ điển hoặc cổ điển ấn tượng, phù hợp với nhu cầu sử dụng và phong cách sống của gia đình, nhà đầu tư cần chú ý đến một số yếu tố trong quá trình thiết kế và xây dựng.

Tìm hiểu kỹ càng về quy hoạch và thủ tục pháp lý
Nên tìm hiểu trước những quy định xây dựng tại khu vực bạn định xây dựng. Chính phủ đã có những quy định riêng về quy hoạch nhà ở ở từng vùng, và việc tuân thủ các quy định này là rất quan trọng.

Hiện tại, các quy định về đất đai và xây dựng thường xuyên có sự thay đổi. Do đó, đây là một công việc quan trọng giúp bạn xác định được kích thước và kiểu dáng của ngôi biệt thự mà bạn muốn xây dựng.
Một số điều bạn cần lưu ý khi kiểm tra quy hoạch xây dựng trên thửa đất của mình bao gồm:
- Kiểm tra mật độ và kích thước xây dựng.
- Xác định khoảng cách lưu không, khoảng lùi và khoảng nhô ra của ban công.
- Các quy định xây dựng đặc thù khác nếu có.

Xác định chính xác nhu cầu và tiện ích
Việc xác định nhu cầu và tiện ích cho không gian biệt thự tân cổ điển hai tầng sẽ giúp bạn có được một định hướng thiết kế cụ thể ngay từ đầu, từ đó tiết kiệm được thời gian và công sức trong quá trình thực hiện.

Khi xác định nhu cầu cho biệt thự, bạn có thể căn cứ vào các yếu tố sau:
- Không gian sinh hoạt chủ yếu phục vụ cho bao nhiêu người?
- Xác định các công năng cần thiết nhằm đáp ứng nhu cầu của các thành viên trong gia đình.
- Khu vực nào cần được ưu tiên xây dựng, chẳng hạn như sân vườn, hồ bơi…
- Những tiện ích mà bạn mong muốn có trong biệt thự, chẳng hạn như khu vực vui chơi, giải trí hay làm việc…
- Khả năng khai thác thêm của biệt thự cho mục đích kinh doanh hoặc cho thuê…
Thiết kế và bố trí công năng tối ưu
Bố trí công năng của biệt thự hai tầng tân cổ điển cần thỏa mãn các yêu cầu sau:

- Cần đáp ứng nhu cầu sử dụng và khai thác hợp lý.
- Các khu vực sinh hoạt nên có sự đồng nhất và liên kết.
- Cần lưu ý đến yếu tố phong thủy nhằm mang lại tài lộc cho gia chủ.
- Phải tối ưu hóa không gian sống một cách hiệu quả.
- Dễ dàng trong việc vận hành và bảo trì.
Chọn màu sắc và ánh sáng hợp lý
Màu sắc và ánh sáng đóng vai trò quan trọng trong việc nâng cao vẻ đẹp và sự thoáng đãng của ngôi biệt thự.

- Cần cân nhắc sử dụng màu sắc một cách hợp lý và mang tính đồng bộ.
- Tránh việc lạm dụng quá nhiều tông màu gây rối mắt và thiếu sự nổi bật.
- Tối ưu hóa việc sử dụng ánh sáng tự nhiên là rất quan trọng.
- Bổ sung hệ thống chiếu sáng trong nhà một cách hợp lý cũng cần được xem xét.
Dự trù ngân sách phù hợp
Việc xác định ngân sách cho thiết kế và xây dựng biệt thự 3 tầng theo phong cách tân cổ điển là điều cần thiết. Điều này hỗ trợ bạn trong việc hoàn thành dự án đúng theo thời hạn và kế hoạch đã xác định.

Bên cạnh việc theo dõi chi phí xây dựng, bạn cũng cần xem xét các khoản chi cho nội thất, thiết bị và tiện ích. Những khoản chi này có thể khá đáng kể, vì vậy cần phải thận trọng và quản lý hợp lý.
Hơn nữa, bạn nên dự kiến một khoản tiền dự phòng để xử lý các phát sinh bất ngờ. Khoản dự phòng này thường nằm trong khoảng từ 5% đến 10% tổng chi phí dự kiến cho xây dựng.
Lựa chọn nhà thầu uy tín
Biến ý tưởng thành hiện thực là một quá trình kéo dài, yêu cầu sự đầu tư và nỗ lực từ cả gia đình bạn cùng với đội ngũ thiết kế và thi công. Bạn có thể tìm kiếm ý kiến từ những người có kinh nghiệm xung quanh và các chuyên gia để chọn ra đơn vị phù hợp với yêu cầu của bạn.

Ngoài ra, bạn cũng cần xem xét cách thức hoạt động của các công ty tư vấn thiết kế và xây dựng biệt thự trên thị trường bằng việc đánh giá các yếu tố như:
- Quy trình làm việc của nhà thầu.
- Trình độ tay nghề và kinh nghiệm của nhân viên.
- Các dự án tương tự mà họ đã thực hiện.
Kiến trúc Nam Cường – Đơn vị thiết kế biệt thự 2 tầng uy tín, chuyên nghiệp
Với hơn 20 năm hoạt động, Kiến Trúc Nam Cường hiện đang là một địa chỉ đáng tin cậy cho nhiều khách hàng trong lĩnh vực thiết kế và xây dựng tổ ấm. Chúng tôi luôn hướng tới sự hài lòng của khách hàng dựa trên những nguyên tắc sau đây:

- Tập trung vào chất lượng thay vì số lượng
- Đội ngũ nhân viên của chúng tôi được đào tạo chuyên sâu tại những trường đại học danh tiếng trong nước và quốc tế. Với nhiều năm kinh nghiệm trong thiết kế, các kiến trúc sư sẽ cung cấp cho khách hàng những giải pháp tổ chức không gian tiện nghi, hợp lý, giúp giải quyết mọi thắc mắc liên quan đến việc bố trí công năng một cách hiệu quả.
- Lợi ích của khách hàng luôn được đặt lên hàng đầu, vì vậy các tư vấn về phong thủy luôn hướng tới việc mang lại điều tốt đẹp, may mắn và tài lộc cho gia chủ.
- Tất cả các dự án mà chúng tôi nhận đều thực hiện trọn gói, từ thiết kế đến thi công, nhằm đảm bảo sự đồng bộ và thống nhất.
Nếu bạn có nhu cầu thiết kế biệt thự 2 tầng tân cổ điển, hãy gọi ngay vào hotline 0976 222 555 để được tư vấn tận tình nhất.




