Với sự kết hợp hoàn hảo giữa vẻ đẹp thanh tao và sự hòa quyện với thiên nhiên, những mẫu biệt thự mái Thái đang trở thành xu hướng nổi bật cho các gia chủ tìm kiếm một ngôi nhà không chỉ đẹp mắt mà còn đầy đủ tiện nghi và tiết kiệm. Trong bài viết này, Kiến trúc Nam Cường sẽ giới thiệu cho bạn những mẫu biệt thự 2 tầng mái Thái được yêu thích nhất trong năm 2025, giúp bạn có thêm ý tưởng cho không gian sống lý tưởng của mình. Hãy cùng bắt đầu cuộc hành trình thú vị này nhé!
-
Mẫu biệt thự mái Thái 2 tầng đẹp
Đặc điểm của biệt thự 2 tầng mái Thái
So với các kiểu mái khác, biệt thự 2 tầng mái Thái nổi bật với việc xếp chồng những viên ngói theo độ dốc cao, thường là khoảng 30 – 40 độ, và chiều dài của mái có thể lên đến 10m. Những mẫu biệt thự này thường có diện tích rộng rãi, phù hợp cho những gia đình đông thành viên.

Mẫu thiết kế biệt thự 2 tầng mang lại vẻ đẹp cân đối, tinh tế, thích hợp với mọi không gian sống từ thành phố đến nông thôn. Đặc biệt, với chi phí xây dựng hợp lý và thời gian thi công nhanh chóng, nó luôn là sự lựa chọn hoàn hảo cho một tổ ấm hiện đại và tiện nghi.
Ngoài ra, biệt thự mái Thái còn sử dụng đa dạng các loại ngói với nhiều kiểu dáng khác nhau như ngói sóng lớn, sóng nhỏ, ngói phẳng, cùng nhiều kích thước và màu sắc, phù hợp với nhiều loại công trình kiến trúc khác nhau.
Lý do khiến biệt thự 2 tầng mái thái được ưa chuộng
Trong những năm gần đây, mái Thái đã trở thành lựa chọn được nhiều người ưa chuộng và đánh giá tích cực nhờ những lợi ích nổi bật sau:
- Đáp ứng tốt các nhu cầu sử dụng: Mái Thái không chỉ có khả năng tản nhiệt hiệu quả mà còn giúp giữ cho ngôi nhà mát mẻ trong những ngày hè nóng bức. Với độ dốc lý tưởng lên tới 30 độ, mái Thái nhanh chóng thoát nước, giúp ngăn ngừa tình trạng đọng nước và thấm dột trong mùa mưa.
- Đa dạng kiểu dáng: Mái Thái có nhiều kiểu dáng khác nhau để phù hợp với từng công trình kiến trúc và sở thích của chủ nhà. Những mẫu mái Thái hiện đại với màu sắc phong phú mang lại tính thẩm mỹ cao và sự độc đáo cho mỗi công trình
- Tính thẩm mỹ vượt trội: Mái Thái thường được coi trọng hơn so với các loại mái khác về mặt thẩm mỹ nhờ sự hòa quyện giữa yếu tố truyền thống và hiện đại, tôn vinh vẻ đẹp sang trọng của ngôi nhà. Mái Thái cũng dễ dàng phối hợp với nhiều phong cách thiết kế khác nhau, tạo nên một không gian ngoại thất tuyệt vời.
- Hợp phong thủy: Biệt thự mái Thái có khả năng điều hòa không khí, giảm thiểu việc tích tụ năng lượng xấu, từ đó mang lại vận may và tài lộc cho gia chủ.
-
Lý do khiến biệt thự 2 tầng mái thái được ưa chuộng
Nhược điểm của nhà mái Thái 2 tầng
Dù biệt thự 2 tầng mái Thái có nhiều ưu điểm, nhưng cũng tồn tại một số nhược điểm mà gia chủ cần quan tâm:
- Yêu cầu tay nghề thi công cao: Việc lắp đặt mái Thái cần những người thợ có chuyên môn và kinh nghiệm, do tính chất công việc đòi hỏi sự tỉ mỉ và chính xác, điều này khiến chi phí xây dựng thường cao hơn so với các loại mái khác.
- Khó khăn khi nâng tầng: Khi đã xây dựng xong, nếu chủ nhà muốn thêm tầng, sẽ phải phá bỏ phần mái đã hoàn thiện.
- Cần bảo trì định kỳ: Sau một khoảng thời gian sử dụng, mái cần được bảo trì để đảm bảo không có vấn đề gì làm ảnh hưởng đến chất lượng công trình.
Tổng hợp mẫu biệt thự 2 tầng mái Thái đẹp, được ưa chuộng nhất năm 2025
Nếu bạn đang có kế hoạch xây dựng một biệt thự 2 tầng với mái Thái, hãy tìm hiểu những mẫu nhà đẹp và hiện đại được ưa chuộng nhất ngay sau đây nhé!
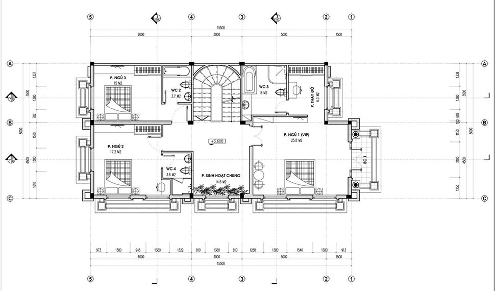
Mẫu biệt thự 2 tầng mái Thái tiện nghi với 3 phòng ngủ
Đối với những gia đình đông người, mẫu biệt thự 2 tầng mái Thái với 3 phòng ngủ chính là lựa chọn tuyệt vời. Ngôi nhà được bố trí một cách hợp lý, không chỉ giúp tiết kiệm diện tích mà còn tạo nên vẻ đẹp cho không gian sống. Thêm vào đó, nó được trang bị đầy đủ các tiện nghi hiện đại. Mái nhà có độ dốc vừa phải, đảm bảo công năng sử dụng cũng như khả năng thoát nước và tản nhiệt tốt. Bạn có thể lựa chọn nhiều màu sắc cho mái, như xanh hay đỏ, với các kiểu dáng đa dạng như lượn sóng hoặc ngói thẳng.

Thiết kế biệt thự 2 tầng mái Thái sang trọng với 4 phòng ngủ
Mẫu biệt thự 2 tầng mái Thái với 4 phòng ngủ có diện tích rộng rãi, trên 100m2, rất phù hợp cho gia đình từ 6 đến 8 người. Thiết kế mái nhà có độ dốc hợp lý và mang phong cách hiện đại, tạo nên vẻ đẹp thu hút cho toàn bộ ngôi nhà.

Mẫu thiết kế này chú trọng vào việc sử dụng các ô cửa sổ lớn bằng kính, giúp tối ưu hóa ánh sáng tự nhiên cho không gian bên trong, tạo cảm giác thoáng đãng và mát mẻ hơn. Đặc biệt, ngôi nhà thường được trang bị hai cửa ra vào: một ở mặt trước và một ở phía sau, mang lại sự thuận tiện trong di chuyển và sinh hoạt hàng ngày.
Mẫu thiết kế biệt thự 2 tầng mái Thái hiện đại và sang trọng
Mẫu biệt thự 2 tầng mái Thái được thiết kế theo phong cách hiện đại, nổi bật với sự tiện nghi, sang trọng nhưng vẫn đảm bảo không gian thoáng đãng, rộng rãi. Ngôi nhà có những hình khối vuông vắn rất ấn tượng, tạo cảm giác phóng khoáng nhưng vẫn hòa hợp với thiên nhiên xung quanh. Có thể thiết kế giếng trời giúp tối ưu hóa ánh sáng tự nhiên và gió, mang lại sự thông thoáng và dễ chịu cho không gian bên trong

Mẫu nhà mái Thái kiểu 2 tầng tuyệt đẹp ở nông thôn Việt Nam
Các mẫu nhà 2 tầng kiểu Thái ở khu vực nông thôn được thiết kế khá đơn giản, với đa dạng phong cách và hình thức, rất thích hợp với những xu hướng hiện đại. Đối với những gia đình có ngân sách hạn chế nhưng vẫn mong muốn có một không gian sinh sống thoải mái, rộng rãi và tiện nghi, nhà mái Thái chính là sự lựa chọn lý tưởng và vô cùng phù hợp.

Mẫu biệt thự 2 tầng mái Thái tối giản
Sự tinh tế và sang trọng là những giá trị tuyệt vời mà bạn cảm nhận được khi ngắm nhìn mẫu biệt thự 2 tầng mái Thái hiện đại gây ấn tượng này. Từng chi tiết được thiết kế cẩn thận, không gian được bố trí hợp lý, mang lại sự hài hòa giữa các yếu tố nội thất và ngoại thất. Mẫu nhà này hoàn toàn đáp ứng nhu cầu sử dụng và tạo ra một không gian sống lý tưởng cho gia đình bạn.

Mẫu biệt thự 2 tầng mái Thái 500 triệu
Với ngân sách khoảng 500 triệu đồng, bạn có thể xây dựng một ngôi nhà Thái 2 tầng đơn giản với khoảng 2 phòng ngủ, lý tưởng cho gia đình có từ 3-4 thành viên hoặc các cặp đôi mới cưới. Thiết kế mẫu nhà này thường theo hình chữ L hoặc nhà ống, giúp tận dụng tối đa không gian và tạo sự hài hòa cho ngôi nhà.

Mẫu thiết kế nhà mái thái 2 tầng có diện tích rộng 60m2
Các kiểu biệt thự 2 tầng mái Thái có diện tích 60m2 lý tưởng cho gia đình có từ 2 đến 4 thành viên. Với không gian không quá rộng rãi, mẫu nhà này không chú trọng vào những chi tiết trang trí phức tạp, mà thay vào đó tập trung vào phong cách tối giản trong thiết kế. Tuy nhiên, nó vẫn mang lại vẻ đẹp tinh tế và hiện đại nhờ vào sự kết hợp hợp lý giữa các loại vật liệu xây dựng.

Mẫu thiết kế nhà mái thái 2 tầng rộng 80m2
Nhà cấp 4 mái Thái có diện tích 80m2 là sự lựa chọn lý tưởng nếu bạn đang mong muốn một không gian sống tiện nghi và hiện đại. Với kích thước này, bạn có thể thiết kế gồm 3 phòng ngủ, một phòng khách rộng rãi, một phòng bếp tiện lợi cùng với 2 nhà vệ sinh, rất phù hợp cho các gia đình từ 4 đến 6 người.

Mẫu thiết kế nhà mái thái đẹp 2 tầng diện tích 100m2
Với diện tích 100m2, bạn có thể chuyển đổi không gian này thành một nơi ở vừa thanh lịch vừa thoải mái, thông qua việc áp dụng nhiều phong cách thiết kế khác nhau, từ cổ điển tinh tế đến hiện đại quyến rũ. Hơn nữa, bạn cũng có thể thêm vào một khu vườn để tạo không khí thoáng đãng và rộng rãi khi bước vào nhà.

Mẫu nhà mái thái 2 tầng rộng rãi với diện tích 120m2
Ngôi nhà 2 tầng mái Thái với diện tích 120m2 thực sự rất thoáng đãng, lý tưởng cho những gia đình đông đúc từ 5 đến 8 thành viên có thể sinh sống một cách thoải mái. Thiết kế mái Thái có độ dốc vừa phải cùng với màu sắc thanh lịch, mang lại sự hiện đại cho toàn bộ không gian sống.

Mẫu nhà này được yêu thích nhờ vào thiết kế hiện đại, với những hình khối độc đáo tạo nên sự mạnh mẽ, nhưng vẫn giữ được sự tinh tế và tiện nghi tuyệt vời cho cuộc sống hàng ngày.
Mẫu thiết kế nhà mái thái 2 tầng với diện tích 150m2
Mẫu biệt thự 2 tầng mái Thái có diện tích 150m2 cho phép bạn linh hoạt trong việc thiết kế hơn nữa bằng cách tích hợp hệ thống nhà vườn, mang đến không gian sống gần gũi với thiên nhiên. Với không gian 150m2, bạn có thể thoải mái bố trí nhiều khu vực khác nhau, nhằm phục vụ tốt nhất nhu cầu sử dụng đa dạng của các thành viên trong gia đình.

Mẫu nhà ống hai tầng với mái Thái đẹp mắt
Nhà ống 2 tầng với thiết kế mái Thái hiện đang trở nên rất thịnh hành và được ưa chuộng trong các khu đô thị, nhất là khi diện tích đất đai thường không lớn. Sự hòa quyện tuyệt vời giữa kiến trúc hiện đại và kiểu mái Thái đã tạo nên một điểm nhấn thẩm mỹ đáng giá cho ngôi nhà.

Kiểu mẫu nhà ống với mái Thái không chỉ thuận tiện mặt bằng mà còn đáp ứng được nhu cầu thẩm mỹ của nhiều gia đình trong thành phố. Bằng cách kết hợp giữa thiết kế đơn giản của nhà ống và nét thanh thoát của mái Thái, các ngôi nhà này mang đến một không gian sống thoải mái nhưng vẫn đầy đủ tính hiện đại. Trong bối cảnh quỹ đất hạn hẹp, mẫu nhà này trở nên lý tưởng cho những gia đình muốn có một nơi ở đẹp và tiện nghi mà không cần quá nhiều diện tích.
Mẫu biệt thự 2 tầng có mái Thái hình chữ L đẹp mắt
Mẫu thiết kế nhà hình chữ L với hai tầng là một lựa chọn phổ biến cho những gia đình sở hữu lô đất có diện tích nhỏ, vì kiểu nhà này không chỉ tối ưu hóa công năng sử dụng mà còn mang đến vẻ đẹp thu hút và sang trọng.

Khi thiết kế nhà chữ L kết hợp với mái Thái, chúng ta không chỉ tạo ra những điểm nhấn thẩm mỹ mà còn bảo vệ ngôi nhà khỏi những tác động tiêu cực từ môi trường xung quanh. Kiểu mái này giúp nước mưa thoát đi dễ dàng, đồng thời có khả năng điều hòa nhiệt độ bên trong ngôi nhà một cách hiệu quả. Do đó, mẫu nhà này đáng để bạn cân nhắc xây dựng cho tổ ấm của mình.
Mẫu nhà 2 tầng mái Thái có bể bơi
Những mẫu biệt thự 2 tầng mái Thái thường có diện tích khá rộng, có thể lên đến hàng trăm mét vuông. Trong khi thiết kế nhà, bạn không chỉ nên chú ý đến khu vực sân vườn mà còn có thể thêm những tiểu cảnh nhỏ hoặc một hồ bơi, điều này sẽ làm cho không gian sống trở nên hiện đại và sang trọng hơn rất nhiều.

Hơn nữa, việc bố trí thêm các khu vực vui chơi cũng rất quan trọng, giúp các thành viên trong gia đình có cơ hội giải trí và thư giãn bên nhau. Việc tạo ra những không gian này không chỉ mang lại sự thoải mái cho gia đình mà còn tạo nên những kỷ niệm đáng nhớ cho mọi người.
Mẫu biệt thự 2 tầng mái Thái có gara
Các mẫu thiết kế biệt thự 2 tầng mái Thái có gara được phát triển với phong cách hiện đại, mang đến những đường nét tinh tế nhưng vẫn thể hiện được sự sang trọng và đẳng cấp. Sự kết hợp mái Thái không chỉ nâng cao giá trị thẩm mỹ cho bề ngoài của ngôi nhà mà còn tạo nên không gian thoáng đãng, dễ chịu, đồng thời vẫn đảm bảo tính năng sử dụng hiệu quả.

Gara thường được đặt gần nhà, giúp việc di chuyển trở nên thuận tiện hơn và bảo vệ phương tiện tốt hơn trong những điều kiện thời tiết khắc nghiệt, như nắng gắt hay mưa lớn.
Mẫu thiết kế biệt thự 2 tầng kiểu mái Thái theo phong cách Tân cổ điển
Mẫu biệt thự 2 tầng mái Thái mang đậm phong cách cổ điển hòa quyện giữa sự tinh tế và cầu kỳ với những chi tiết kiến trúc tinh xảo, làm cho ngôi nhà trở nên nổi bật hơn bao giờ hết. Đặc biệt, mái Thái với độ dốc hợp lý và gam màu hiện đại nổi bật sẽ chắc chắn nâng cao giá trị thẩm mỹ cho không gian ngoại thất của ngôi nhà bạn.

Mẫu biệt thự 2 tầng mái Thái theo phong cách châu Âu độc đáo
Các mẫu thiết kế theo phong cách châu Âu thường nhận được sự yêu mến từ không ít gia chủ. Việc kết hợp mái Thái với phong cách châu Âu mang đến vẻ đẹp tinh tế và sang trọng cho toàn bộ không gian sống. Nếu bạn là người yêu thích không gian sống hiện đại và đầy đủ tiện nghi, mẫu nhà này chắc chắn là lựa chọn không thể bỏ qua.
Phân loại biệt thự 2 tầng mái Thái
Dựa vào nhu cầu và sở thích của chủ đầu tư, các biệt thự 2 tầng mái Thái được phân chia thành nhiều loại khác nhau dựa trên những tiêu chí sau:
Phân loại dựa trên hình dáng của chúng
Dựa trên kiểu dáng của ngôi nhà, biệt thự 2 tầng mái Thái có thể được phân chia thành các loại như: nhà mái Thái hình chữ L, nhà mái Thái hình chữ U, nhà mái Thái dạng hình chữ nhật, và nhà mái Thái dạng hình vuông. Trước tiên, cần xác định rõ phong cách thiết kế tổng thể của ngôi nhà để có thể chọn được kiểu mái phù hợp nhất với thiết kế đó.
Phân loại dựa theo kích thước diện tích
Biệt thự 2 tầng kiểu mái Thái có nhiều kích thước khác nhau, phù hợp với nhu cầu sử dụng, ngân sách và số thành viên trong gia đình. Một số kích thước phổ biến mà bạn có thể tham khảo là 70m2, 100m2, 150m2, 200m2 và còn nhiều kích thước khác nữa.
Phân loại theo các phong cách khác nhau
Mỗi ngôi nhà đều có những phong cách thiết kế riêng biệt, thể hiện sự độc đáo, phong cách sang trọng và gu thẩm mỹ khác nhau của chủ sở hữu. Có rất nhiều phong cách thiết kế phổ biến như:
- Kiến trúc cổ điển: Thích hợp cho những ai yêu thích sự cổ xưa, với những chi tiết tinh tế và phức tạp, thể hiện sự sang trọng và quý phái cho ngôi nhà.
- Kiến trúc tân cổ điển: Dành cho những gia chủ muốn hòa quyện giữa cổ điển và hiện đại. Các thiết kế tân cổ điển thường đơn giản hơn một chút nhưng vẫn giữ được vẻ đẹp sang trọng và lộng lẫy.
- Kiến trúc hiện đại: Lý tưởng cho những ai yêu thích sự đơn giản, không cầu kỳ nhưng vẫn tạo được điểm nhấn độc đáo, mang lại vẻ đẹp cho không gian tổng thể.
Những lưu ý quan trọng khi xây dựng biệt thự 2 tầng mái Thái
Để xây dựng một biệt thự 2 tầng mái Thái chất lượng, đáp ứng mọi yêu cầu sử dụng và sở thích thẩm mỹ, bạn cần chú ý đến một số điểm sau:
Quy hoạch tổng thể khu đất trước khi xây dựng
Quy hoạch tổng thể cho khu đất là một nhiệm vụ vô cùng quan trọng mà chúng ta cần thực hiện ngay từ những bước đầu trước khi bắt tay vào thi công. Công việc này không chỉ giúp chúng ta phân chia rõ ràng từng khu vực trong ngôi nhà mà còn tối ưu hóa sự tiện ích và công năng của từng không gian sống.
Để đạt được hiệu quả cao nhất, bạn nên xem xét vị trí của căn nhà đặt ở trung tâm của khu đất, từ đó phân định các khu vực chính và phụ trong ngôi nhà. Quan sát và đánh giá tổng thể này sẽ giúp ích rất nhiều trong suốt quá trình xây dựng, đảm bảo rằng mọi thứ được sắp xếp một cách hợp lý và khoa học nhất.
Tính toán và chuẩn bị kỹ lưỡng kinh phí xây dựng
Ngân sách đầu tư sẽ ảnh hưởng trực tiếp đến cách thức thiết kế và xây dựng ngôi nhà của bạn. Cụ thể, tại mỗi vùng địa lý và vào từng khoảng thời gian khác nhau, chi phí sẽ có sự biến đổi đáng kể.
Do đó, bạn cần tìm hiểu hoặc kết nối với những công ty thi công có uy tín để được hướng dẫn và tư vấn một cách chi tiết và phù hợp. Việc này sẽ giúp bạn có được thông tin rõ ràng về các mức chi phí cũng như các lựa chọn phù hợp cho ngôi nhà của mình.
Lưu ý về độ dốc của mái Thái
Trong quá trình xây dựng, độ nghiêng của mái Thái có ý nghĩa vô cùng quan trọng đến tuổi thọ, khả năng thoát nước và vẻ đẹp của công trình, vì vậy bạn cần dành sự quan tâm đặc biệt cho vấn đề này.
Thông thường, mái Thái được thiết kế với độ dốc từ 30 đến 40 độ để đảm bảo việc thoát nước hiệu quả, tránh tình trạng nước đọng gây thấm dột vào tường. Mái Thái có thể có độ dốc tối đa lên tới 60 độ, vì thế, hãy tham khảo ý kiến từ kiến trúc sư để được tư vấn chi tiết hơn.
Quan tâm tới yếu tố phong thủy khi xây nhà
Phong thủy đóng một vai trò rất quan trọng, vì nó tác động trực tiếp đến vận mệnh của ngôi nhà. Khi thiết kế một biệt thự 2 tầng mái Thái, bạn cần chú ý đến một số vấn đề phong thủy quan trọng sau đây:
- Về mái nhà: Nên chọn mái có độ dốc hợp lý, không quá cao mà cũng không quá thấp. Theo phong thủy, mái chóp nhọn không phải là lựa chọn tốt, vì nó có thể tạo ra sát khí và mang lại vận xui cho gia đình.
- Hướng nhà: Hướng nhà là yếu tố then chốt trong phong thủy, nên chọn hướng phù hợp với tuổi và mệnh của gia chủ, phải tuân thủ nguyên tắc “tọa hung hướng cát”. Một số hướng tốt có thể kể đến là Nam (Phúc Đức), Đông Nam (Tài Lộc), Đông Bắc (Thiên Y) và Tây Bắc (Sinh Khí).
- Cổng nhà: Cổng là nơi thu hút khí vào nhà, vì vậy cần thiết kế kích thước phù hợp, rộng rãi và thoáng đãng. Không nên để cổng nhà đối diện với các góc nhọn, đường đâm hay nhà vệ sinh…
- Về màu sắc: Nên chọn màu sắc chủ đạo phù hợp với mệnh của gia chủ để mang lại vận may và tài lộc.
- Vị trí các phòng: Trong việc sắp xếp các khu vực trong ngôi nhà, cần chú ý đến cân bằng âm dương, tuân thủ quy tắc phong thủy và tránh những điều kiêng kỵ có thể gây tiêu tốn tài chính, ảnh hưởng đến sức khỏe và vận may của gia đình.
Phối hợp chặt chẽ với nhà thầu
Nếu bạn chưa có kinh nghiệm trong việc xây dựng biệt thự 2 tầng mái Thái đẹp, bên cạnh việc tự mình nghiên cứu thông tin, bạn có thể tìm kiếm sự tư vấn từ các đội ngũ thi công có uy tín. Họ sẽ giúp bạn tìm ra những giải pháp tối ưu giúp tiết kiệm chi phí trong khi vẫn bảo đảm chất lượng công trình và tính thẩm mỹ.
Với nhiều năm kinh nghiệm trong lĩnh vực thiết kế và thi công, Kiến trúc Nam Cường là địa chỉ đáng tin cậy được nhiều khách hàng lựa chọn. Đội ngũ kiến trúc sư tại đây có chuyên môn cao và luôn sẵn lòng hỗ trợ để mang đến không gian sống hoàn hảo cho khách hàng.
Cách tính chi phí xây biệt thự mái Thái chuẩn nhất
Tính toán chi phí xây dựng cho mẫu biệt thự 2 tầng mái Thái sẽ giúp bạn có cái nhìn tổng quát về ngân sách và hạn chế các chi phí phát sinh không cần thiết trong quá trình thi công.
Công thức để tính chi phí xây dựng biệt thự 2 tầng mái Thái như sau:
Chi phí xây dựng phần thô = Diện tích xây dựng x Đơn giá xây dựng phần thô.
Trong đó:
- Tổng chi phí xây dựng = Chi phí xây dựng phần thô + Chi phí hoàn thiện + Các chi phí khác.
- Chi phí hoàn thiện = Diện tích xây dựng x Đơn giá hoàn thiện.
Chi phí xây dựng biệt thự 2 tầng mái Thái thường bị ảnh hưởng nhiều bởi yêu cầu của khách hàng, thời gian xây dựng, địa điểm thi công, và loại vật liệu xây dựng, nội thất sử dụng. Để có báo giá chính xác và cụ thể hơn, bạn hãy liên hệ với hotline: 0976.222.555 để được Kiến trúc Nam Cường hỗ trợ thêm nhé!
Hướng dẫn lựa chọn nhà thầu và quy trình xây dựng
1. Lựa chọn nhà thầu:
- Tìm kiếm và đánh giá: Bắt đầu bằng cách tìm kiếm các nhà thầu có kinh nghiệm xây dựng biệt thự mái thái và có uy tín tốt trong ngành. Đánh giá họ dựa trên các dự án đã hoàn thành, phản hồi của khách hàng trước đó và các giấy tờ pháp lý liên quan.
- Xác minh tín nhiệm: Kiểm tra giấy phép kinh doanh, bảo hiểm, và các chứng chỉ nghề nghiệp của nhà thầu. Điều này sẽ giúp bạn đảm bảo rằng nhà thầu đủ điều kiện và có khả năng thực hiện dự án của bạn.
-
Không gian ngoại thất của biệt thự mái thái
2. Quy trình xây dựng:
- Lập kế hoạch: Sau khi chọn được nhà thầu, bước tiếp theo là lập kế hoạch chi tiết cho từng giai đoạn của dự án. Điều này bao gồm việc thiết lập một lịch trình rõ ràng, phân công công việc và xác định các mốc thời gian quan trọng.
- Thi công: Quá trình thi công bao gồm nhiều giai đoạn từ chuẩn bị mặt bằng, đổ móng, xây dựng cơ bản, đến hoàn thiện. Đảm bảo rằng nhà thầu thực hiện theo đúng các tiêu chuẩn kỹ thuật đã được thiết lập.
- Giám sát và kiểm soát chất lượng: Trong suốt quá trình xây dựng, việc giám sát công trình là cần thiết để đảm bảo chất lượng công trình và tuân thủ tiến độ. Đừng ngại thuê một chuyên gia độc lập để kiểm tra và giám sát các giai đoạn quan trọng của dự án.
-
Biệt thự mái thái mini
3. Hoàn thiện và nghiệm thu:
Sau khi công trình hoàn thiện, bạn cần phối hợp với nhà thầu để kiểm tra và nghiệm thu công trình. Điều này bao gồm việc kiểm tra chất lượng vật liệu, độ bền của công trình, và đảm bảo rằng mọi thứ được hoàn thành theo đúng thiết kế ban đầu.
Qua các bước trên, bạn sẽ có thể chọn lựa được một nhà thầu phù hợp và hiểu rõ quy trình để xây dựng một biệt thự mái thái chất lượng, đáp ứng tối ưu cho nhu cầu của gia đình mình.
Chi phí xây dựng và bảo trì cho biệt thự mái thái
Xây dựng và bảo trì biệt thự mái thái đòi hỏi chi phí cụ thể cho từng phần, bao gồm vật liệu, nhân công và bảo trì. Dưới đây là một phân tích chi tiết các khoản chi phí này để bạn có thể chuẩn bị ngân sách hợp lý.
Chi phí vật liệu: Vật liệu cho biệt thự mái thái cần đảm bảo chất lượng để chịu được điều kiện thời tiết nhiệt đới. Ngói mái thái, thường là ngói bitum hoặc ngói ceramic, có giá cao hơn ngói thông thường do khả năng cách nhiệt và độ bền cao. Các vật liệu khác như gạch, cát, xi măng, và sắt thép cũng phải tính toán kỹ lưỡng để đảm bảo tính kinh tế mà vẫn duy trì chất lượng công trình.
-
Biệt thự mái thái tân cổ điển
- Chi phí nhân công: Chi phí nhân công có thể chiếm một tỷ lệ đáng kể trong tổng chi phí xây dựng, đặc biệt tại các khu vực có ít nguồn nhân lực chuyên nghiệp. Việc lựa chọn đội ngũ thợ có kinh nghiệm và uy tín sẽ giúp tiết kiệm chi phí về lâu dài nhờ việc giảm thiểu sai sót và sửa chữa.
- Chi phí bảo trì: Biệt thự mái thái cần được bảo trì định kỳ để đảm bảo mái ngói không bị rêu mốc hoặc hư hại do thời tiết. Chi phí bảo trì bao gồm vệ sinh mái ngói, kiểm tra và sửa chữa các phần bị hỏng, và thay thế ngói nếu cần. Dự phòng chi phí bảo trì hàng năm khoảng 1-2% tổng giá trị của ngôi nhà là một sáng kiến tài chính thông minh.
Lập kế hoạch tài chính chi tiết và chuẩn bị nguồn ngân sách dự phòng cho các sự cố bất ngờ sẽ giúp quá trình xây dựng và bảo trì diễn ra suôn sẻ, đảm bảo ngôi nhà của bạn luôn trong tình trạng tốt nhất.
-
Biệt thự mái thái về đêm
Kiến trúc Nam Cường – Chuyên thiết kế thi công biệt thự 2 tầng mái Thái chuyên nghiệp
Với hơn 20 năm kinh nghiệm hoạt động, Kiến Trúc Nam Cường hiện đang là một địa chỉ đáng tin cậy cho nhiều khách hàng trong lĩnh vực thiết kế và xây dựng biệt thự 2 tầng mái Thái. Chúng tôi luôn hướng tới sự hài lòng của khách hàng dựa trên những nguyên tắc sau đây:
- Tập trung vào chất lượng thay vì số lượng.
- Đội ngũ nhân viên của chúng tôi được đào tạo chuyên sâu tại những trường đại học danh tiếng trong nước và quốc tế. Với nhiều năm kinh nghiệm trong thiết kế, các kiến trúc sư sẽ cung cấp cho khách hàng những giải pháp tổ chức không gian tiện nghi và hợp lý, giúp giải quyết mọi thắc mắc liên quan đến việc bố trí công năng một cách hiệu quả.
- Lợi ích của khách hàng luôn được đặt lên hàng đầu, vì vậy các tư vấn về phong thủy luôn hướng tới việc mang lại điều tốt đẹp, may mắn và tài lộc cho gia chủ.
- Tất cả các dự án mà chúng tôi nhận đều được thực hiện trọn gói, từ thiết kế đến thi công, nhằm đảm bảo sự đồng bộ và thống nhất.
Để tham khảo nhiều hơn những mẫu thiết kế biệt thự đẹp, bạn hãy truy cập vào trang web của Kiến trúc Nam Cường hoặc liên hệ với kiến trúc sư qua số điện thoại 0976 222 555.



























